Skip to main content

Hãy liên hệ với ZAVAK ngay để nhận vô vần ưu đãi hấp dẫn.


Hotline: 0909 801 599
Hotline: 0916 001 366

Khuyến mại: Miễn phí lắp đặt cho 8 quận nội thành Hà Nội
HOTLINE: 0909.801.599
0909.801.699

Cửa mở bản lề âm sàn Zavak MHX

4.8/5 - (6 bình chọn)

Mua ngay với giá

Liên hệ

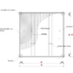
Khi cần một giải pháp nắp xuống hầm hoặc nắp bể cá koi đóng mở nhẹ nhàng, an toàn và sang trọng, hãy nghĩ ngay đến cửa mở bản lề âm sàn Zavak MHX. Nhờ thiết kế cửa mở bản lề âm sàn kết hợp xi lanh hơi hỗ trợ nâng cánh cửa, MHX giúp thao tác mở nắp cực kỳ đơn giản và nhẹ tay. Phần khay bên trên có thể lát gạch/đá giúp mặt sàn liền mạch, đồng thời inox 304 chất lượng và gioăng cao su EPDM giúp sản phẩm có độ bền cao, ngăn bụi và ngăn mùi hiệu quả. Sản phẩm được sản xuất theo yêu cầu kỹ thuật và thẩm mỹ của từng công trình.

1. Thông tin sản phẩm cửa mở bản lề âm sàn Zavak MHX

  • Mã sản phẩm: MHX
  • Thương hiệu: ZAVAK – Việt Nam
  • Chất liệu: Inox 304 (Thép không gỉ)
  • Bản lề trợ lực mở cánh lên trên
  • Phần khung ngoài: Có gioăng cao su
  • Khả năng chống nước: C4
  • Khả năng Ngăn mùi: 85%
  • Bảo hành sản phẩm: 2 năm

2. Bảng thông số tiêu chuẩn MHX

Mã sản phẩmKích thước khung phủ bì (mm)Kích thước lọt sáng (mm)Kích thước cao khung (mm)Chịu tải ZAVAK cấp
MHX-AAĐặt hàng theo yêu cầuAA

Lưu ý, ngoài các mã tiêu chuẩn, Zavak có thể cung cấp:

  • Thiết kế chịu tải cấp cao hơn: 3A, 4A
  • Có lựa chọn chức năng hạn chế mở nắp trái phép
  • Trợ lực bằng xi lanh điện
  • Có lựa chọn chức năng chống nước
  • Thiết kế sản xuất theo các kích thước khác theo yêu cầu, tối đa 1 cạnh <3000mm

3. Công năng sử dụng cửa mở bản lề âm sàn Zavak MHX

  • Độ bền vượt trội: Sử dụng chất liệu inox 304 chống gỉ, đảm bảo tuổi thọ lâu dài ngay cả trong 1 số môi trường khắc nghiệt
  • Thiết kế đồng bộ thẩm mỹ: Phần khay bên trên cho phép lát gạch hoặc đá, tạo sự liền mạch và hài hòa với không gian
  • Trang bị gioăng cao su EPDM ngăn bụi, ngăn mùi hiệu quả
  • Cơ chế bản lề âm sàn hỗ trợ đóng mở nhẹ nhàng nhờ xi lanh hơi, tăng tính tiện lợi và an toàn khi sử dụng
  • Ứng dụng đa dạng: Phù hợp làm nắp xuống hầm, nắp bể cá koi, nắp phòng kỹ thuật
  • Sản xuất theo yêu cầu: Có thể tùy chỉnh kích thước, chịu tải theo nhu cầu thực tế của công trình

4. Lợi ích khi sử dụng cửa mở bản lề âm sàn Zavak MHX

  • Tối ưu thẩm mỹ cho công trình
  • Không gian luôn sạch sẽ và hạn chế mùi khó chịu
  • Vận hành êm ái, tiện lợi
  • Độ bền vượt trội, thích hợp 1 số môi trường khắc nghiệt

Để đảm bảo tính thẩm mỹ và công năng hoàn hảo cho hầm/hầm rượu/bể cá koi của Quý khách, Chúng tôi rất mong được hỗ trợ tư vấn chi tiết về cửa mở bản lề âm sàn Zavak MHX qua hotline 0909.801.599 hoặc 0909.801.699.

5. Hình ảnh thực tế lắp đặt nắp hầm rượu Zavak MHX

nắp bể ngầm zavak nắp hố ga inox nắp hầm trợ lực
nắp bể ngầm zavak nắp hố ga inox nắp hầm trợ lực
nắp bể nước ngầm zavak nắp hố ga inox nắp hầm trợ lực
nắp bể ngầm zavak nắp hố ga inox nắp hầm trợ lực
nắp bể ngầm zavak nắp hố ga inox304 nắp hầm có tay nâng trợ lực
nắp bể ngầm zavak nắp hố ga inox nắp hầm trợ lực
nắp bể ngầm zavak nắp hố ga inox304 nắp hầm có tay nâng trợ lực
nắp bể ngầm zavak nắp hố ga inox304 nắp hầm có tay nâng trợ lực
nắp bể ngầm zavak nắp hố ga inox304 nắp hầm có tay nâng trợ lực
nắp bể nước ngầm zavak nắp hố ga inox nắp hầm trợ lực
nắp bể nước ngầm zavak nắp hố ga inox nắp hầm trợ lực
nắp bể nước ngầm zavak nắp hố ga inox nắp hầm trợ lực
nắp bể nước ngầm zavak nắp hố ga inox nắp hầm trợ lực
nắp bể nước ngầm zavak nắp hố ga inox nắp hầm trợ lực

Hướng dẫn lắp đặt

1 17
3 20
2 20
4 17
Xem thêm
Rút gọn
Hãy Gọi Chúng Tôi Để Được Báo Giá