Nắp bể trong nhà Zavak MHI/MHIS
Mua ngay với giá
814.000₫ – 5.280.000₫Khoảng giá: từ 814.000₫ đến 5.280.000₫
Nắp bể trong nhà Zavak MHI được dùng làm nắp đậy bể nước ngầm trong nhà hoặc nắp bể bơi, nắp bể kỹ thuật, nắp hầm rượu, nắp hầm kỹ thuật… cho mọi công trình nhằm bảo vệ kết cấu hệ thống ngầm phía dưới, giữ an toàn và góp phần hoàn thiện mỹ quan tổng thể. MHI có mức tải trọng chịu lực đi bộ hoặc xe máy nên rất phù hợp vị trí lắp đặt ở trong nhà. Nhờ thiết kế đa năng, giá cả phải chăng, phù hợp nhiều loại công trình, MHI đang là dòng nắp kỹ thuật âm sàn được ưa chuộng hàng đầu tại Zavak.
1. Thông tin sản phẩm nắp bể trong nhà Zavak MHI
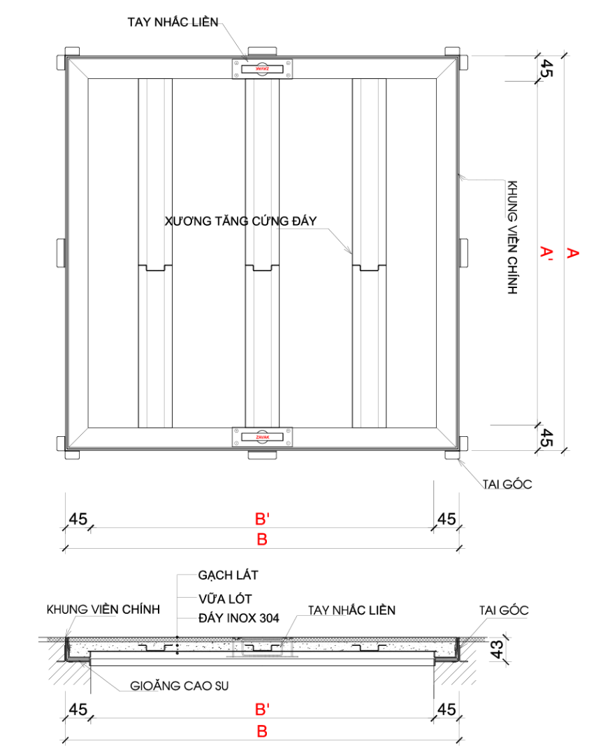
- Mã sản phẩm: MHI và MHIS
- Thương hiệu: ZAVAK – Việt Nam
- Chất liệu: Inox 304 (Thép không gỉ)
- Phần khung ngoài: Có gioăng cao su
- Đóng mở bằng tay nâng liền 2 bên
- Chỉ số ngăn mùi: 85%
- Chỉ số ngăn nước: C4
- Bảo hành: 2 năm
2. Bảng thông số tiêu chuẩn MHI
| TT | Mã sản phẩm | Kích thước khung (mm) | Kích thước lọt sáng (mm) | Kích thước cao khung (mm) | Chiều dày gạch lát tối đa(mm) | Tải tiêu chuẩn Zavak |
| 1 | MHIS-25 | 250×250 | 203×203 | 52 | 20 | A |
| 2 | MHIS-30 | 300×300 | 253×253 | 52 | 20 | A |
| 3 | MHIS-40 | 400×400 | 353×353 | 52 | 20 | A |
| 4 | MHIS-45 | 450×450 | 403×403 | 52 | 20 | A |
| 5 | MHIS-50 | 500×500 | 453×453 | 52 | 20 | A |
| 6 | MHIS-60 | 600×600 | 552×552 | 53 | 20 | A |
| 7 | MHIS-70 | 700×700 | 652×652 | 53 | 20 | A |
| 8 | MHI-70 | 700×700 | 610×610 | 50 | 10 | A |
| 9 | MHI-75 | 750×750 | 660×660 | 50 | 10 | A |
| 10 | MHI-80 | 800×800 | 710×710 | 50 | 10 | A |
| 11 | MHI-90 | 900×900 | 810×810 | 50 | 10 | A |
Nắp bể nước ngầm kích thước 600×600 đang là lựa chọn phổ biến nhất, được đông đảo khách hàng tin dùng.
3. Bản vẽ cấu tạo nắp bể ngầm trong nhà Zavak MHI

4. Công năng sử dụng của nắp bể nước ngầm trong nhà Zavak MHI
- Che đậy và bảo vệ hệ thống ngầm bên trong ngôi nhà
- Đảm bảo an toàn cho người sử dụng
- Ngăn côn trùng, rác thải, bụi bẩn… xâm nhập vào bên trong bể
- Thiết kế âm sàn, lát gạch đồng bộ với mặt sàn góp phần hoàn thiện mỹ quan tổng thể
- Gioăng cao su kín khít giúp ngăn mùi, chống nước hiệu quả
- Tay nâng hai bên giúp đóng/mở dễ dàng, thuận tiện cho kiểm tra và bảo trì
- Bảo vệ kết cấu giúp kéo dài tuổi thọ của bể ngầm

Lắp đặt hoàn thiện nắp bể nước trong nhà MHI
5. Lợi ích của nắp bể ngầm trong nhà Zavak MHI
- Giữ cho hệ thống ngầm được sạch sẽ, hạn chế tối đa tác động từ bên ngoài
- Hoàn thiện mỹ quan tổng thể giúp cho ngôi nhà thêm phần hiện đại
- Tiết kiệm chi phí bảo trì nhờ độ bền vượt trội của inox 304
- Dễ dàng kiểm tra và bảo trì
- Dễ dàng lựa chọn với các kích thước phổ biến có sẵn tại Zavak
Lựa chọn nắp bể nước ngầm trong nhà Zavak MHI không chỉ bảo vệ nguồn nước sinh hoạt mà còn giữ cho không gian luôn gọn gàng, an toàn. Hãy liên hệ với Zavak ngay hôm nay qua số hotline 0909.801.599 hoặc 0909.801.699 để được tư vấn trực tiếp và nhận giải pháp nắp bể nước trong nhà phù hợp nhất cho bạn.








































